Conteúdo atualizado em24 de novembro de 2015às 12:27
No passado dia 13 de novembro, a Câmara Municipal de Águeda assinou com o industrial Joaquim Cruz e sua esposa Maria Clara Cruz uma escritura de doação à Autarquia de 3 prédios urbanos no centro de Assequins.
A cerimónia contou com a participação do Presidente da Câmara de Águeda, Gil Nadais, e do Vereador João Clemente, para além de Joaquim Cruz e Maria Clara Cruz.
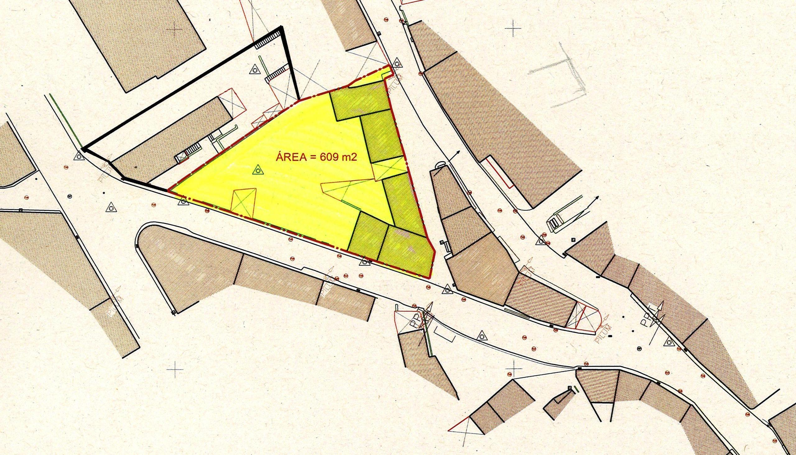
Gil Nadais expressou a gratidão da Autarquia pela doação dos 3 prédios urbanos contíguos que perfazem um total de 609 m2, tendo destacado o facto de se localizarem na Área de Reabilitação Urbana da Cidade de Águeda (ARU), “assumindo-se como uma oportunidade para valorizar esta parte da cidade criando um espaço de utilização coletiva, um espaço verde”.
A ARU da Cidade de Águeda, que inclui Assequins e Paredes, foi aprovada pelo Executivo Municipal em 3 de setembro de 2015.